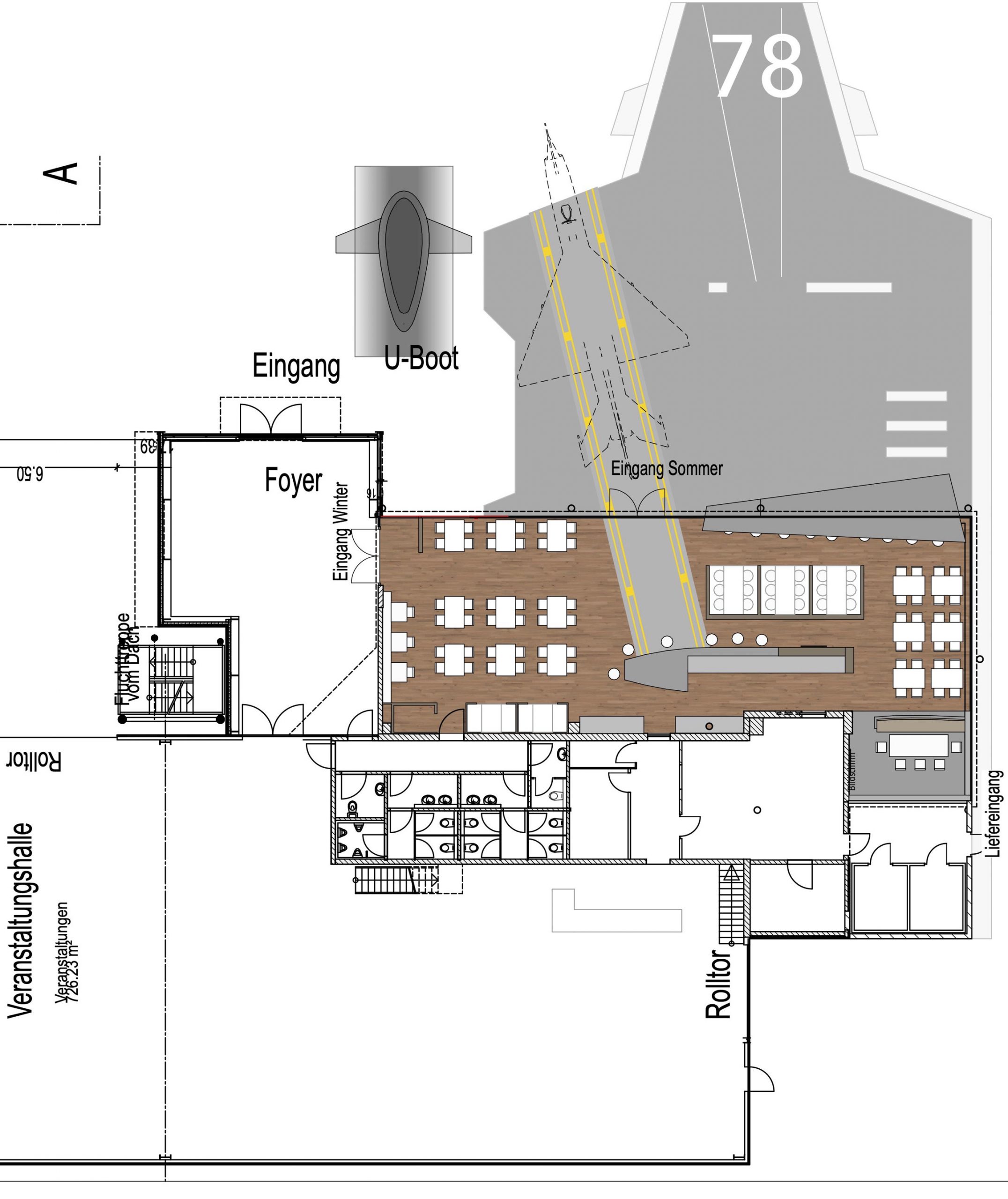
Auto-Technik-Museum Sinsheim – Diner „Flight Deck“| MuseumsbauAugust 22, 2023Oktober 17, 2023 Neubau eines American-Diner unter Einbeziehung im Fundus befindlicher Flugzeuge im Innen- und im Außenbereich.